| 物件名 |
ミュージアムコート Y's (ワイズ) |
| 種別 |
マンション |
| 部屋タイプ |
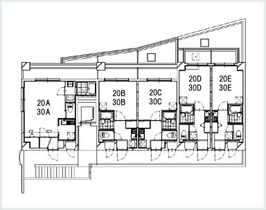
1K |
| 住所 |
横浜市保土ヶ谷区星川2丁目 |
| 交通 |
相鉄線「星川」駅より徒歩4分 |
| 賃料 |
20E 30D 月額 66,000円 |
| 管理費・共益費 |
月額 4,000円 |
| 敷/礼ほか |
敷金なし 礼金 1ヶ月 原状回復費 1ヶ月
|
| 専有面積 |
20E 20.15㎡ 30D 20.16㎡
|
| 築年 |
2007年 2月 |
|
|
 |
| 構造・規模 |
RC 5階建 |
| その他 |
保険加入必要 18,000円/2年 |
| 駐車場 |
無 |
| 駐輪場 |
無 |
| その他 |
町内会費 8,400円(2年分)
暮らし安心サポート加入要:13,200円(2年分) |
| |
■ Galleyのあるマンション ■ |
| |
1階共有部に絵画を展示。癒しの空間を演出。 |
| |
モニター付インターフォン ・ オートロック |
| |
ペアガラス ・ エアコン ・ ガスコンロ ・ バストイレ別 |
| 入居日 |
相談 |
| |
|
|
|
|
こちらのタイプまたは同等のお部屋は現在「募集中」です。
詳しくは こちら⇒、またはお電話(045-363-8080)まで
お問い合わせください。 |
|
|
|
|